圆竹结构建筑的连接验算

圆竹结构建筑的连接验算
▎一般规定
(1)圆竹结构建筑的下列部位应进行连接验算:
- 底层的下导梁与钢筋混凝土基础的连接,应进行螺栓的抗拔和抗剪验算;
- X型钢带与上、下导梁的连接,应进行螺栓的抗剪验算;
- 圆竹柱与导梁的连接,应进行单个螺栓的承载力和每一剪面的承载力验算。
(2)所有连接宜优先采用螺栓连接;外墙承受较大荷载时,竹骨架构件之间宜采用L型连接件连接。

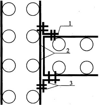
图1外墙竹骨架构件之间角链连接
1-L型连接件;2-导梁;3-自攻钉连接
(3)圆竹结构建筑的同一节点或接头中有两种或多种不同的连接方式时,验算时应只考虑一种连接传递内力,不得考虑几种连接的共同工作。
▎螺栓连接和钉连接
(1)底层的下导梁和钢筋混凝土条形基础的连接、第二层以上的下导轨和下层的上导轨连接应采用螺栓连接,其强度验算应符合下列规定:
-
- 螺栓的剪力设计值,可取剪力墙墙体在地震作用和风荷载作用下的剪力较大值除以螺栓数量;螺栓的抗剪承载力设计值应按现行国家标准《钢结构设计规范》GB 50017的有关规定计算;
- 螺栓的抗拔设计值,可取单片柱在地震作用和风荷载作用下的轴心拉力较大值除以螺栓数量;抗拔承载力设计值应按现行国家标准《混凝土结构设计规范》GB 50010和《钢结构设计规范》GB 50017的有关规定计算;
- 螺栓同时受拉和受剪时,其承载力应按下式计算:

式中:Nbv——抗剪承载力设计值(N);
Nbt——抗拔承载力设计值(N);
Nv——受剪设计值(N);
Nt——抗拔设计值(N)。
-
- 和螺栓连接的单根圆竹,其受拉承载力应按下式计算:

式中:N——抗剪承载力设计值;
An——单根圆竹的净截面面积(mm2);
ft——圆竹的抗拉强度设计值(N/mm2)。
(2) X型钢带与上、下导轨的连接,当采用自攻螺钉连接时,其强度计算宜符合现行国家标准《钢结构设计规范》GB 50017的有关规定,也可按下列公式计算:
- 自攻螺钉的抗剪设计值,可取X型钢带在地震作用和风荷载作用下的轴心拉力较大值除以自攻螺钉数量;
- 自攻螺钉的抗剪承载力设计值,可取受剪承载力设计值和承压承载力设计值中的较小者。

式中:Nbv——受剪承载力设计值(N);
Nbc——承压承载力设计值(N);
d——自攻螺钉直径(mm);
∑t——受压构件的厚度,可取导梁与X型钢带厚度的较小值(mm);
fbv、fbc——自攻螺钉的抗剪和承压强度设计值(N/mm2);
nv——受剪面数目,单面连接时取1。
(3)单片柱与上、下导梁的连接,宜采用螺栓连接,也可采用自攻螺钉连接。其强度验算应符合下列规定:
- 螺栓(自攻螺钉)的抗剪设计值,可取单片柱在地震作用和风荷载作用下的轴心拉力较大值除以螺栓(自攻螺钉)数量;
- 螺栓(自攻螺钉)的抗剪承载力设计值,应取螺栓(自攻螺钉)的受剪承载力和承压承载力设计值、每一剪面的承载力设计值的较小值。螺栓(自攻螺钉)的受剪承载力和承压承载力设计值可分别根据本规程公式(8.2.2-1)和公式(8.2.2-2)计算。
每一剪面的承载力设计值可按(8.2.3)式确定,或根据试验结果确定。
![]()
式中:Nv——每一剪面的承载力设计值(N);
d——螺栓(自攻螺钉)的直径(mm);
fc——圆竹的承压强度设计值,可取50(N/mm2);
kv——自攻螺钉与圆竹连接强度系数,可按现行国家标准《木结构设计规范》GB 50005取10。
境道原竹12年高端品牌的竹结构企业,专业为: 竹结构、竹建筑、竹装饰、竹房子、竹景观、竹编、竹屋、竹别墅、竹楼、竹桥、竹亭、竹廊、竹长廊、竹棚等竹艺工程提供,竹结构项目咨询、竹建筑图纸设计、竹子材料生产、竹结构施工管理等一系列服务,致力为客户提供卓越的一站式体验.电话400-886-6075 021-58665611
点赞 (0)
- 上一篇 原竹建筑连接节点(一)
- 下一篇 原竹建筑连接节点(四)
相关推荐
related suggestion